5
3
2
187 m²
208 m²
208 m²
329 m²
MORADIA NOVA A ESTREAR — CENTRO DA VILA DE QUIAIOS | FIGUEIRA DA FOZ
Elegante, luminosa e com uma distribuição perfeita para quem procura conforto, privacidade e espaço para a família.
Uma oportunidade rara em Quiaios — uma casa nova, funcional e cheia de luz, pronta a acolher uma família que privilegia proximidade, conforto e modernidade.
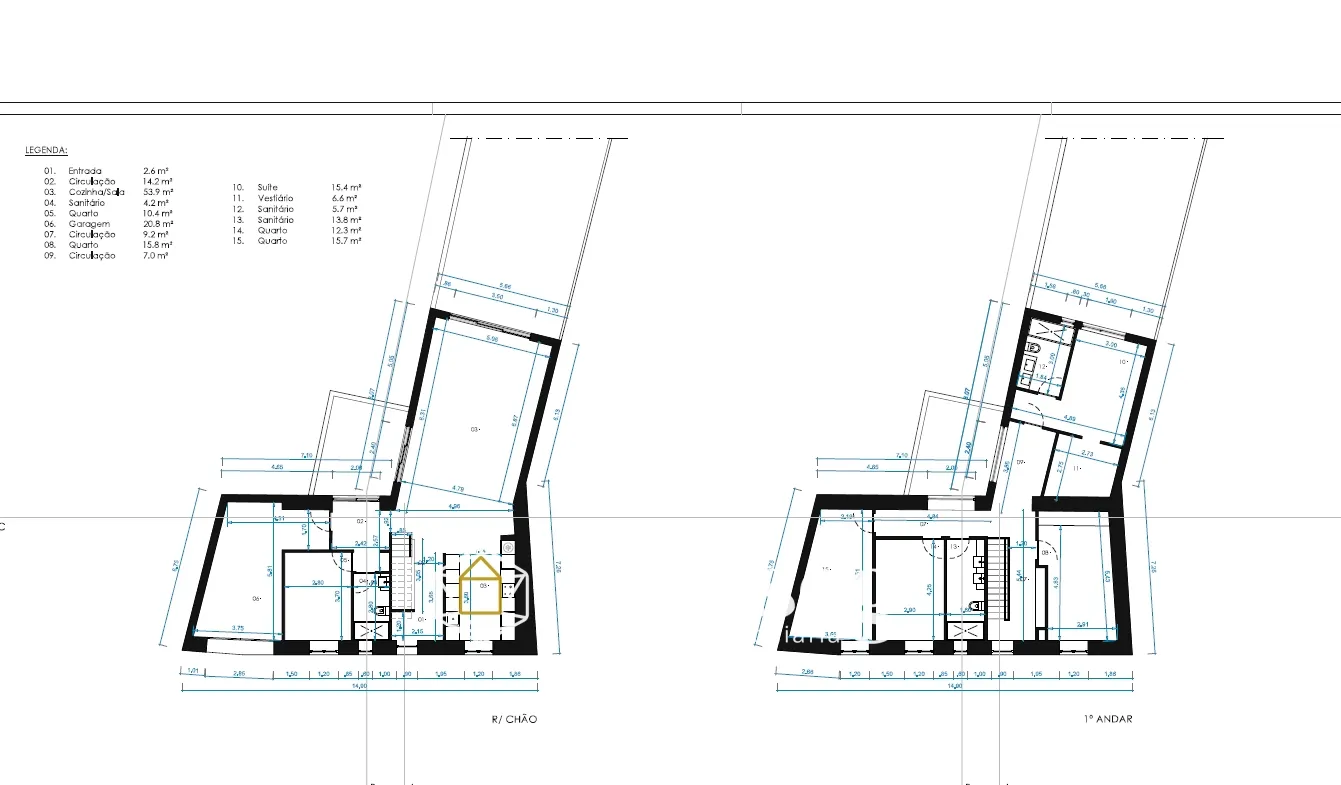
5 quartos | 2 pisos | Jardim e terraço | Escritório independente | Garagem
NO RÉS-DO-CHÃO:
– Sala e cozinha em open space com 54 m², amplos, modernos e preparados para receber a família e os amigos.
– Casa de banho completa.
– Quarto no piso térreo — ideal para visitas ou apoio a quem privilegia acessibilidade.
– Garagem com acesso direto.
NO PISO SUPERIOR:
– 3 quartos muito luminosos, todos com excelente exposição solar.
– 1 suite principal com vestiário e charmoso WC privativo.
– Casa de banho de grandes dimensões e lavatórios duplos.
EXTERIOR BEM PENSADO
– Escritório independente no jardim — perfeito como sala de brincadeiras, espaço de estudo ou trabalho a partir de casa.
– Jardim privado com área de lazer.
– Terraço ideal para refeições ao ar livre e momentos em família.
– Total privacidade e ambiente tranquilo, no coração da vila.
CONFORTO E EFICIÊNCIA
– Cozinha equipada.
– Ar condicionado.
– Estores elétricos.
– Bomba de calor.
– Isolamento térmico e acústico de excelência (capoto).
Moradia com acabamentos modernos e pensada para quem procura qualidade de vida e espaço para tudo!
***
Algumas imagens apresentadas são renderizações virtuais, destinadas apenas a ilustrar o potencial de decoração e aproveitamento dos espaços.
***
Descubra esta moradia nova a estrear no centro da Vila de Quiaios, com 5 quartos, áreas amplas, luz natural em todas as divisões, jardim, terraço e escritório independente — uma oportunidade rara na Figueira da Foz.
Para mais informações ou visita privada, contacte já a urbiseg imobiliária — acompanhamos todo o processo com rigor, transparência e dedicação.
(Se precisar de vender para comprar, nós podemos ajudar!)
Precisa de crédito habitação? Fale connosco! Somos intermediários de crédito autorizados pelo Banco de Portugal, com registo nº 0003928.
Visite-nos, venha conhecer a nossa Figueira da Foz.
A nossa cidade, localizada entre Lisboa e Porto, próxima de Coimbra, mantém ainda hoje o charme e a imponência da Rainha das Praias, além da tranquilidade e segurança de uma pequena cidade à beira-mar.
Figueira da Foz: onde o rio Mondego e o oceano se encontram.
Considerada a “Rainha da Costa de Prata”, a cidade situa-se no litoral da região Centro de Portugal e pertence ao distrito de Coimbra. Estamos a apenas 30 minutos de Coimbra, 1:30h do Aeroporto do Porto e 2:00h do Aeroporto de Lisboa.
urbiseg, apartamentos, T1, T2, T3, moradias com garagem, casas na Figueira da Foz, para compra e venda, na Praia, Vista mar. Moradia nova, a estrear, Figueira da Foz, Quiaios, centro da vila, 5 quartos, suite com closet.